Áreas de Desarrollas
1. Gestión de Proyectos Urbanos y Arquitectónicos
Coordinación y ejecución de proyectos emblemáticos tanto desde el gobierno nacional como financiados por agencias multilaterales. Experiencia en liderar iniciativas urbanas integrales que fomentan la sostenibilidad y el desarrollo inclusivo.
2. Planeación Urbana Estratégica
Diseño de planes urbanos que fomenten el crecimiento sostenible e inclusivo de las ciudades, integrando herramientas de gestión territorial, financiamiento del suelo y estrategias de mitigación del cambio climático.
3. Consultoría en Políticas Urbanas y Uso del Suelo
Asesoramiento técnico en la implementación de políticas urbanas, regulación del uso del suelo y mecanismos de captura de valor.
4. Vivienda Social y Reconfiguración Urbana
Diseño y gestión de proyectos de vivienda social con enfoques sostenibles y regenerativos. Experto en la reconfiguración de asentamientos informales mediante reajuste de suelos.
5. Movilidad Urbana y Sostenible
Desarrollo de soluciones para el transporte sostenible , con énfasis en reducir emisiones de CO2 y fomentar una movilidad equitativa e inclusiva.
6. Participación Comunitaria y Justicia Espacial
Promoción de procesos participativos en proyectos urbanos para garantizar la inclusión de comunidades locales.

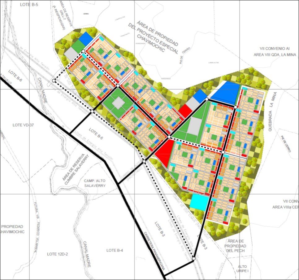
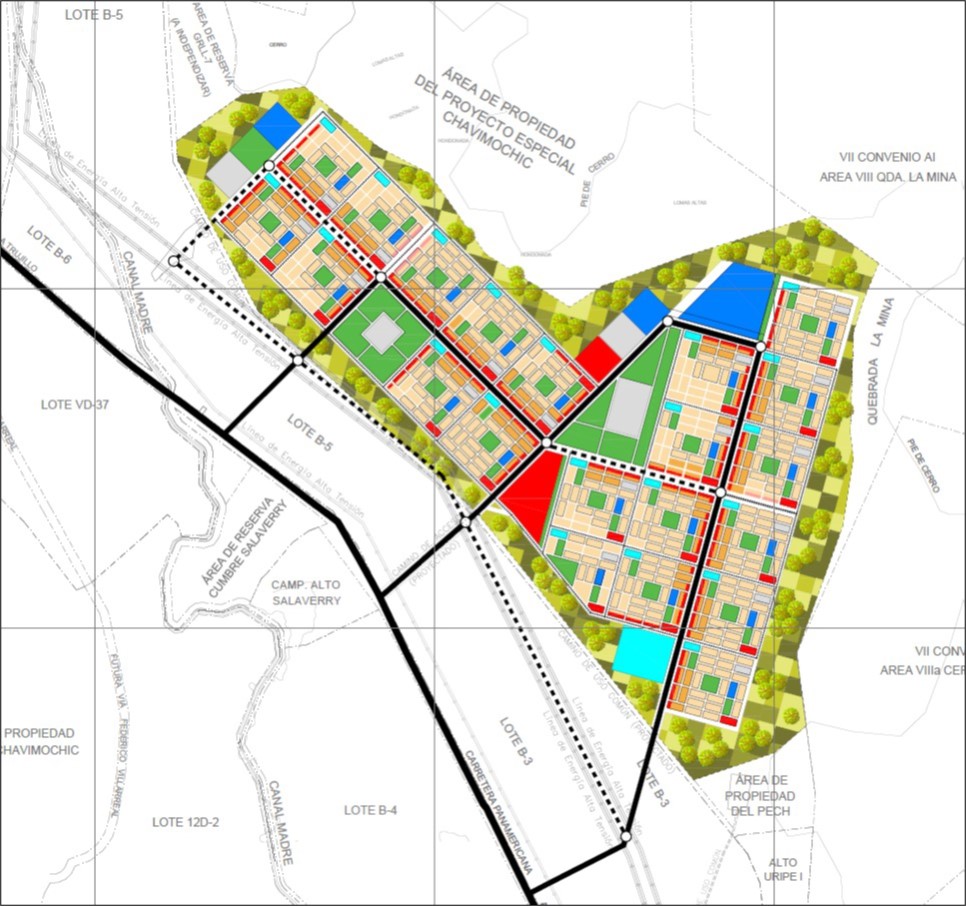
Gestión de Planificación urbana para el Proyecto Chavimochic, una obra que se desarrolla en la costa de la región La Libertad, en las provincias de Virú, Trujillo y Ascope. Proyecto promovido por el MVCS – Perú
Gráficos: Equipo técnico

Proyecto Urbano Integral «Héroes del Morro», promovido por el Ministerio de Vivienda. La consultoría proporcionó estrategias clave para transformar este desarrollo en un modelo de ciudad sensible al agua, considerando su ubicación sobre un remanente de humedal activo.
Gráficos: Equipo técnico
PLAN DE DESARROLLO URBANO CALLAO 2040
La consultoría se basó en el desarrollo de una visión estratégica para los sistemas urbanos del Callao, orientada al crecimiento urbano sostenible e inclusivo hacia 2040. Incluyó propuestas innovadoras de financiamiento para vivienda asequible e infraestructura, así como pilotos de reajuste de tierras para fomentar la regeneración urbana.
Gráficos: Equipo técnico
Gestión De proyectos urbanos integrales y políticas de suelo













